网站首页
关于我们
公司简介
领导致辞
公司资质
企业文化
机构设置
新闻资讯
公司新闻
行业动态
项目展示
已建项目
拟建项目
人员招聘
在线留言
联系我们
公司新闻
行业动态
公司新闻
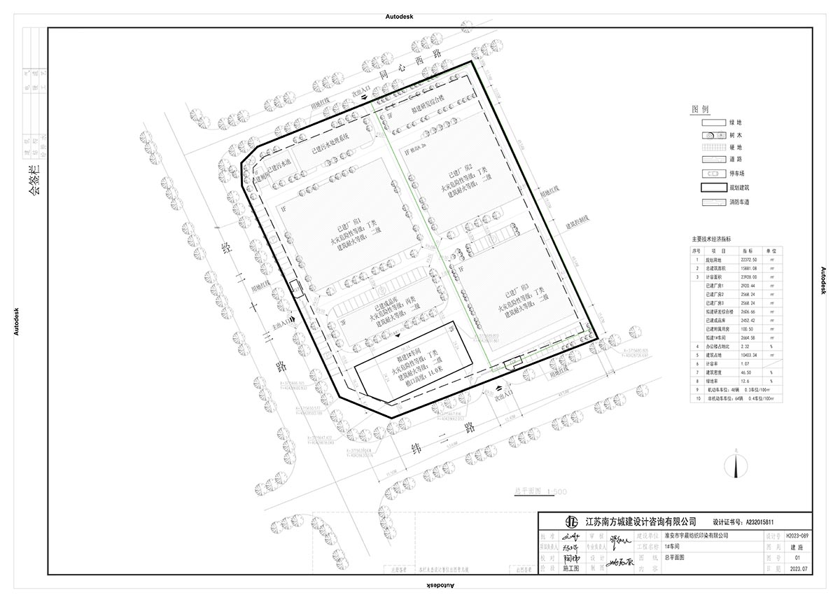
祝贺江苏一帆建设承建"淮安宇晨纺织印染1#厂房"开工大吉!
发布时间:2026/3/16 14:29:32
点击率:168
2026年3月16日上午9时18分,由"江苏一帆建设"承接的"淮安市宇晨纺织印染有限公司(1#车间)项目"开工大吉!项目位于淮安市淮安区化工集中区柳蒲弯路6号,该项目土建、钢结构、安装方案符合规划条件及相关技术规定要求!
上一篇:没有了
下一篇:
匠心筑底,畅强项目基础工程告捷!江苏一帆建设喜迎2026开门红!